iframe page Kodiak 1200 Step Top Page Here

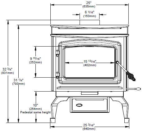
Stove Dimensions


Front View Legs & Ash Pan Dimensions


Left Side View Legs & Ash Pan Dimensions


Front View Pedestal Dimensions


Left Side View Pedestal Dimensions

Unfortunately the image does not exist - you have to extrapolate between the below two drawings