iframe page Kodiak 1200 Flat Top Page Here

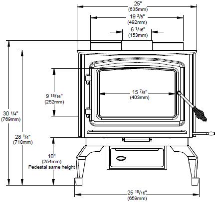
Stove Dimensions


Front View Legs & Ash Pan Dimensions


Left Side View Legs & Ash Pan Dimensions
Unfortunately the image does not exist - you have to extrapolate between the below two drawings


Front View Pedestal Dimensions


Left Side View Pedestal Dimensions