iframe page Advance Page Here

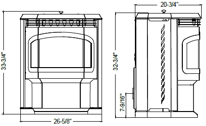
Stove Dimensions


Front & Left Side Dimensions


Rear View Dimensions