iframe page M55 Cast Page Here

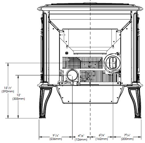
Stove Dimensions


Front & Right Side View Dimensions


Top View Dimensions


Rear View Dimensions